Icon

Why Choose Us!

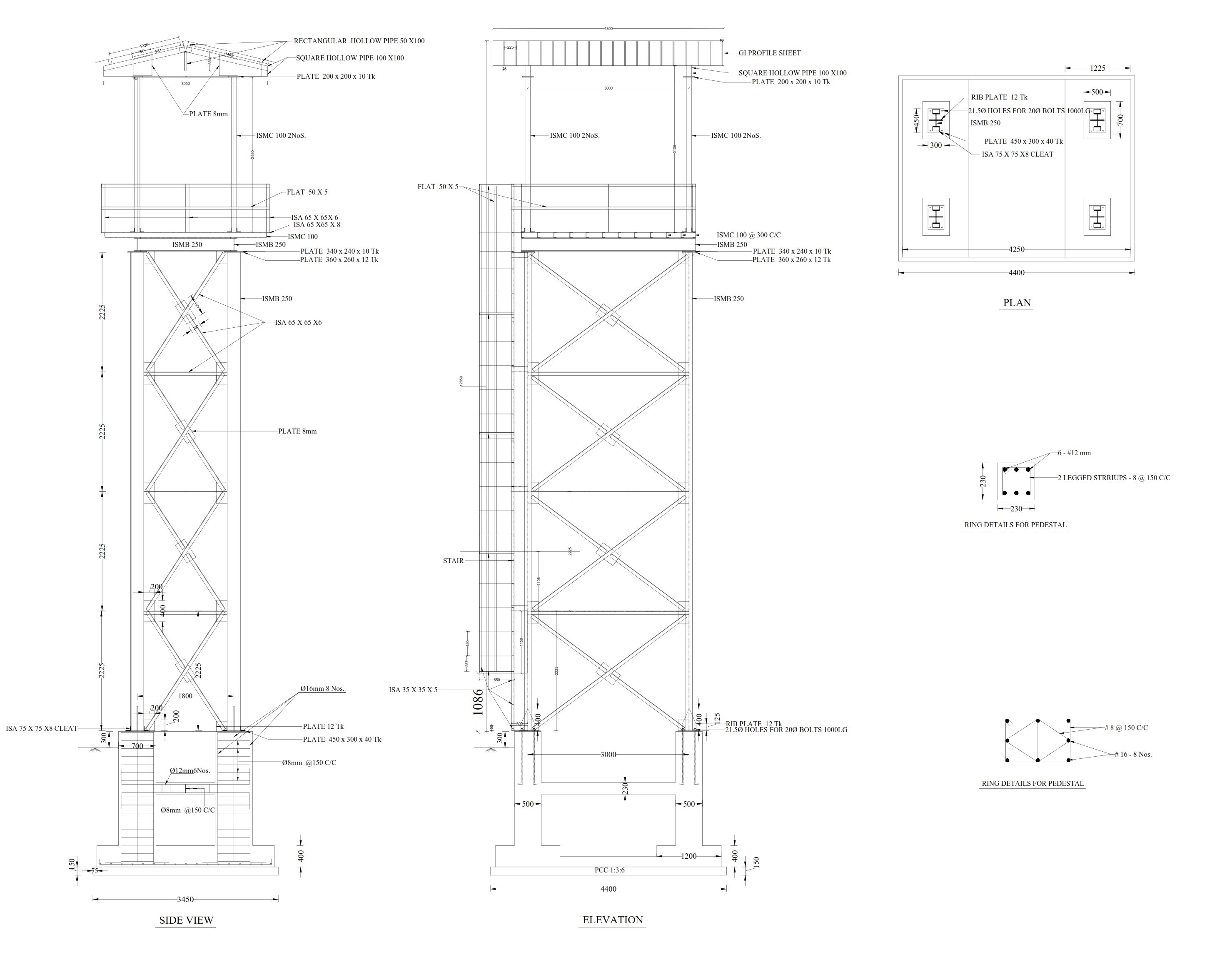
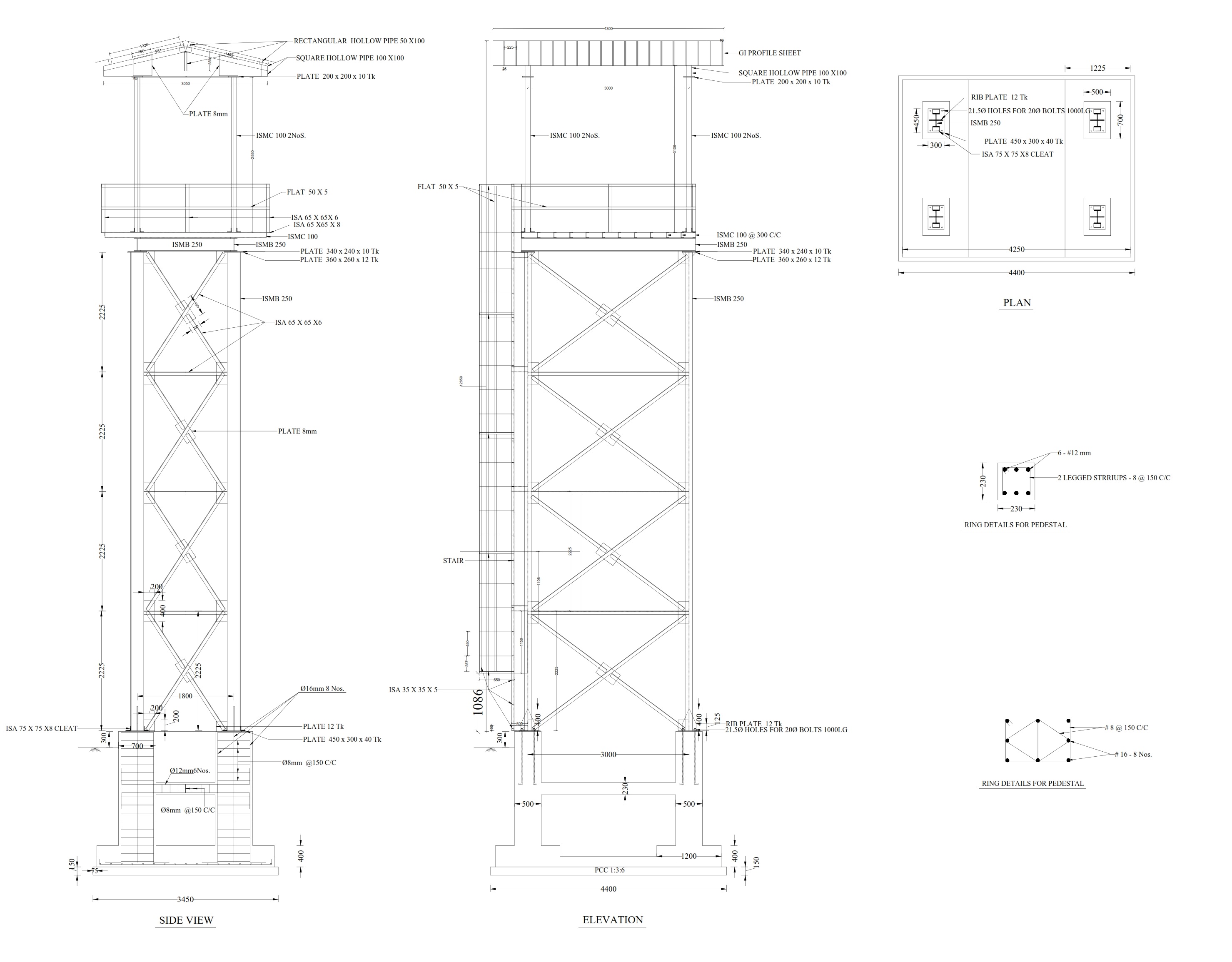
About Structural Industrial Shed

Industrial architecture is a type of architectural design used in the construction of buildings in the industrial sector. At Berry Engineers, Industrial buildings are constructed for the purpose of efficiently and safely processing raw materials into new products. Types of industrial buildings include power plants, distilleries, breweries, manufacturing facilities, factory buildings, grain silos, and refineries.

Key Point About Industrial Shed

  • Wide-open spaces
  • Minimalist aesthetic
  • Exposed materials and utilities
  • Natural light

Gallery For Structural Industrial Shed

We Are Innovative Design Team For Industrial Shed